64 Rockyvale Drive NWCalgary, AB T3G 5Z4
Due to the health concerns created by Coronavirus we are offering personal 1-1 online video walkthough tours where possible.




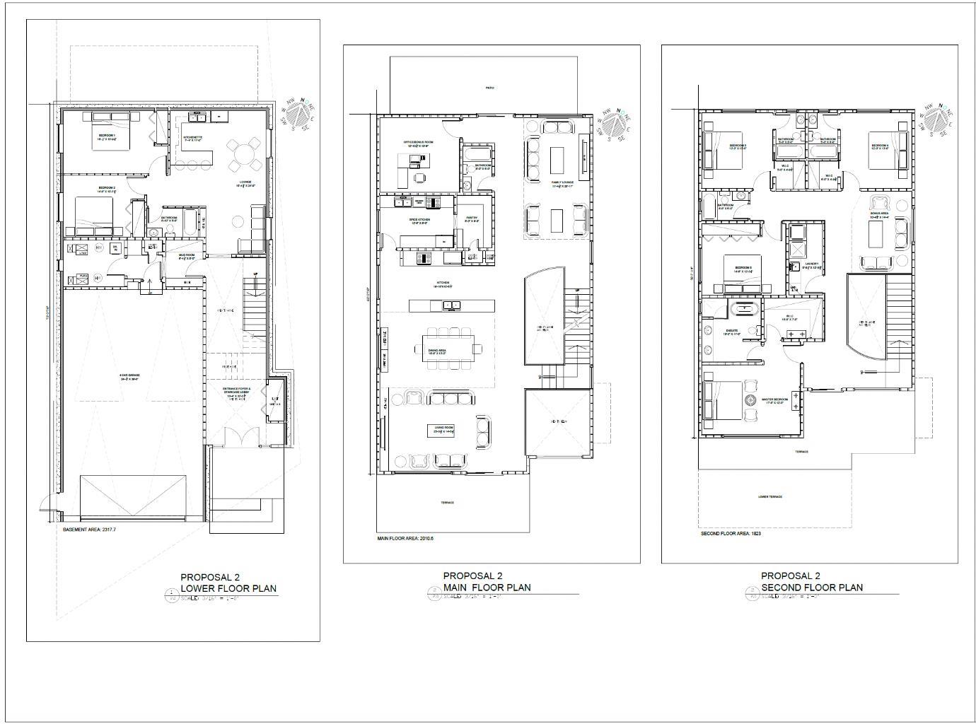
No Building commitment, Bring your own builder 3 lots available, lot 17, 18 & 12. ( Lot 12 is walkout) Build your dream custom home 3000-5000 sq/ft on an expansive 7,427 sq ft (63.5 ft Front, 138 & 171 ft sides, and 43 ft back ) Estate lot in sought-after Rocky Ridge, NW Calgary, perfectly positioned across from a tranquil pond and backing onto green space and trees. This rare homesite offers true four-season serenity, with no neighbours behind, direct access to pathways, and sweeping Rocky Mountain views that frame your backyard and fill your main living spaces with natural beauty. Set high on Calgary’s northwest ridge, your custom design can take full advantage of the rolling landscape—imagine a sun-filled great room with wall-to-wall windows, a gourmet kitchen and covered deck overlooking the treetops. Morning walks around the wetland ponds, evenings watching the sunset over the Rockies, and easy access to Rocky Ridge’s extensive pathways, parks, and Ranch Centre amenities create an unparalleled lifestyle that feels like a retreat while still being minutes from major routes, C-Train access, and northwest shopping and services.
| 2 weeks ago | Listing first seen on site | |
| 2 weeks ago | Listing updated with changes from the MLS® |
Listing information is provided by Participants of the Alberta One Realty Listing Services (Pillar 9). IDX information is provided exclusively for personal, non-commercial use, and may not be used for any purpose other than to identify prospective properties consumers may be interested in purchasing. Information is deemed reliable but not guaranteed. Copyright 2026, Alberta One Realty Listing Services (Pillar 9)
Last checked 2026-02-25 05:54 PM UTC


Did you know? You can invite friends and family to your search. They can join your search, rate and discuss listings with you.