2740 16A Street SECalgary, AB T2G 3T2
Due to the health concerns created by Coronavirus we are offering personal 1-1 online video walkthough tours where possible.




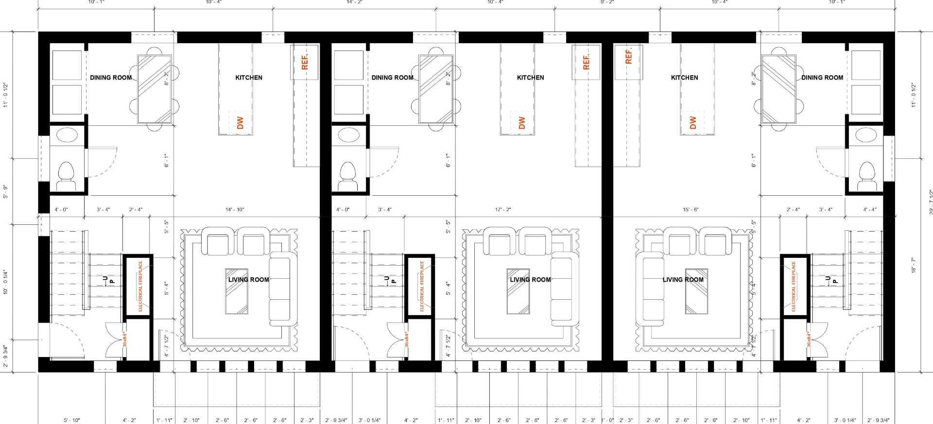
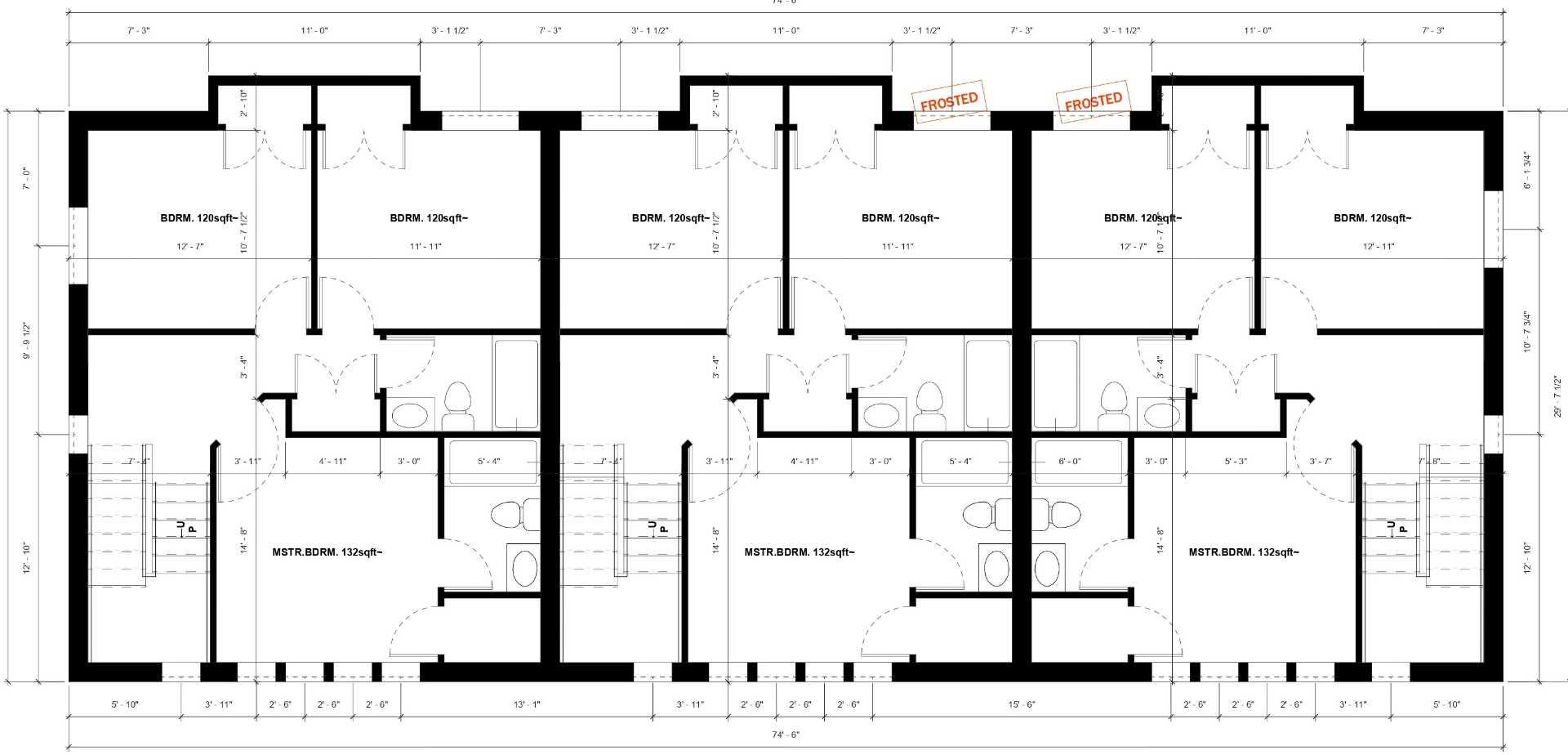
Attention Investors & Developers! Rare opportunity to acquire a prime R-CG corner lot in the highly desirable community of Inglewood. This property offers over 4,850 sq ft of development-ready land with Conditional Approval on a Development Permit (DP) for a 3-plex however will transfer this project with clean Development Permit (DP)The proposed plans feature three 2-storey units, each offering approximately 1,500 sq ft of above-grade living space, including 3 bedrooms and 2.5 bathrooms, plus a 1-bedroom, 1-bathroom basement per unit. While the existing home is currently livable, the property is being sold as land value only—no warranties or representations will be provided on the current structure. Current Update -DP2022-05030 is Expired but Can Help to Apply New DP using Old DP Drawings or with New design. Guy Wire fees has been paid for already, and it will be removed before possession.
| 7 months ago | Listing first seen on site | |
| 7 months ago | Listing updated with changes from the MLS® |
Listing information is provided by Participants of the Alberta One Realty Listing Services (Pillar 9). IDX information is provided exclusively for personal, non-commercial use, and may not be used for any purpose other than to identify prospective properties consumers may be interested in purchasing. Information is deemed reliable but not guaranteed. Copyright 2026, Alberta One Realty Listing Services (Pillar 9)
Last checked 2026-02-25 02:29 PM UTC


Did you know? You can invite friends and family to your search. They can join your search, rate and discuss listings with you.